







Kasutatav pind: 87,94 m²
Tube: 3
Hoonealune pind: 115,53 m²
3E elemente: 765
Vannitube: 1
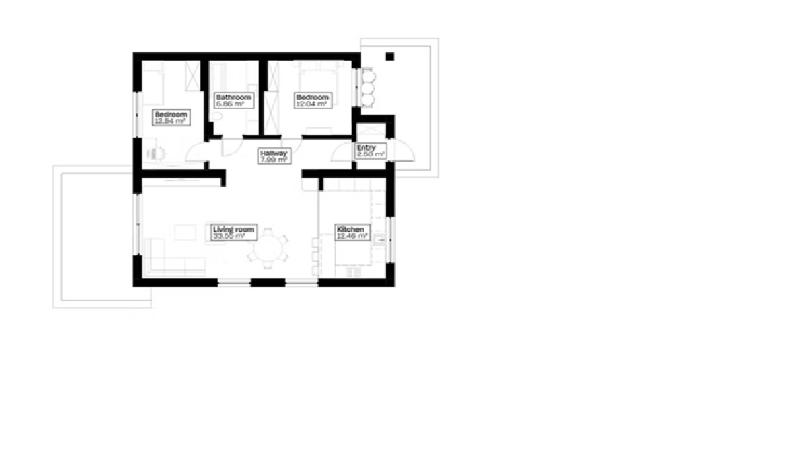
MODULAR-88 on kaasaegne ühekorruseline maja, kus 88 m² on nutikalt ja tõhusalt ära kasutatud. Avar, valgusküllane elutsoon ühendab elutoa, söögiala ja köögi ning eraldi tiivas asuvad kaks privaatset magamistuba.
Lihtne vorm, 3E tehnoloogia ja betooni puudumine muudavad ehituse kiireks ja kuluefektiivseks. See on ideaalne lahendus isetegijatele ja 3E fännidele, kes soovivad oma kodu ise üles ehitada.
Pakett ei sisalda
Näidismajade hind sisaldab karbi jaoks materjali.
- Kohalikke makse ja transpordikulu
- Viimistlustöid (fassaad, siseviimistlus, aknad, uksed, katus jms)
- Elektri-, vee- ja kanalisatsioonisüsteemide paigaldust
Põhipaketi hind: 18400 € (neto)
(lisandub käibemaks ja transpordikulu)